Switchback, Maidenhead
Change of Use: Class MA Office to Resi
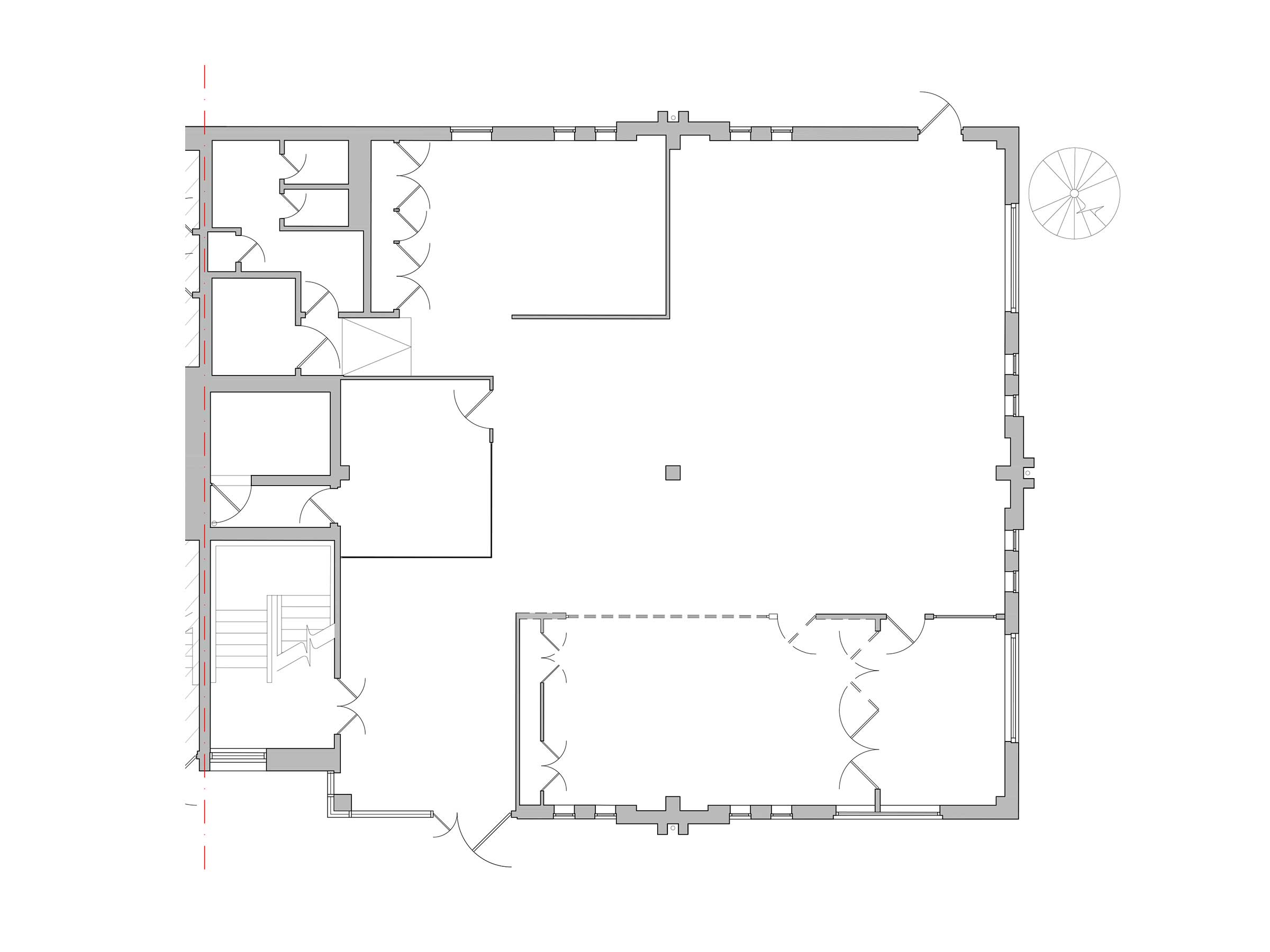
S&P were instructed change of use to residential at Switchback Estate, an existing office estate consisting of 7 storeys and approximately 4,000sqm. S&P successfully gained approval for the conversion of all 6 buildings, providing 49 units overall, the majority of which were 1 bedroom dwellings.
The client was ultimately looking to maximise the value of the Site when putting the site up for sale, therefore the approval makes the site more attractive to a wider range of buyers, residential or commercial.
Project completed by Spratley & Partners
Project data
Client: Workspace
Location: Maidenhead
Type: Prior Approval
Class MA
Approval Granted: Oct 2024
No. Buildings: 6
Existing Floor Area: 3,921sqm
42,200sqft
Number of Units: 49
Completion: 33no. 1bed,
16no. 2 beds
No. Storeys: 2
HRB: No




